Convitto in vendita a Torino - San Donato
Via Gaspare Saccarelli, 2
Torino - Palazzo cielo-terra in Vendita, zona San Donato adiacente Porta Susa
In posizione centrale e strategica, a pochi passi dalla stazione metropolitana e ferroviaria di Porta Susa, proponiamo in Vendita un prestigioso palazzo cielo-terra situato nel quartiere San Donato, in un contesto ben servito da mezzi pubblici, negozi, scuole e servizi di ogni genere.
L'immobile, edificato nei primi anni del '900 mantiene il fascino dell'epoca con dettagli architettonici originali, ed è dotato di ascensore interno.
Attualmente a destinazione convento/Convitto, si sviluppa su più livelli ed è ideale per essere riconvertito in struttura ricettiva, residenziale, direzionale o scolastica, previa verifica urbanistica.
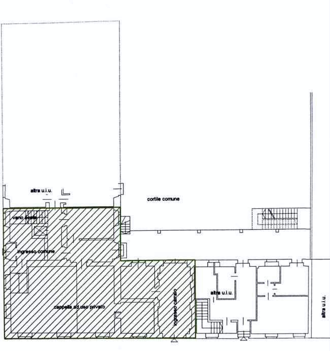
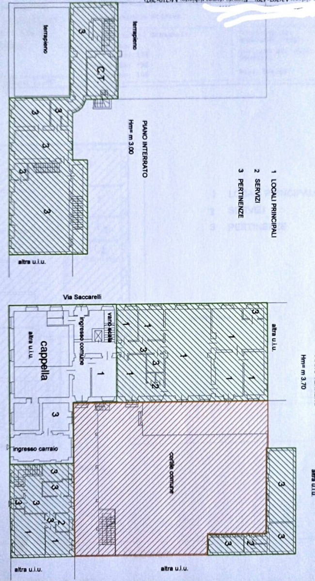
Completa la proprietà un ampio e riservato cortile privato di oltre 480 mq, elemento raro e di grande valore in una zona così centrale della città.
Caratteristiche principali:
- Superficie utile sviluppata su più piani;
- Ascensore interno;
- Cortile privato di 480 mq;
- Pozione centrale e comoda a tutti i servizi;
- A due passi dalla metropolitana e stazione di Porta Susa;
- Immobile da valorizzare, con ottime potenzialità di riconversione;
Soluzione unica nel suo genere, ideale per investitori o operatori del settore.
Per ulteriori informazioni chiamare al 3298719743 - 3928337675.
Torino - San Donato
Via Gaspare Saccarelli, 2
2.251
mq
20
Camere
20
Bagni
P.IVA: 15580491007